In Datteln wurden vier Dachgeschosse erfolgreich ausgebaut und in attraktive, moderne Wohnungen verwandelt. Die neuen Einheiten überzeugen durch helle Räume, durchdachte Grundrisse und eine hochwertige Ausstattung. So entsteht zusätzlicher Wohnraum mit besonderem Flair – ideal für Singles, Paare oder kleine Familien.

Mit dem Ausbau von vier Dachgeschossen in Datteln schafft MS-Projektbau neuen, begehrten Wohnraum in zentraler Lage. Die ehemaligen Speicher wurden vollständig umgestaltet und in moderne, lichtdurchflutete Wohnungen verwandelt. Große Fenster, offene Wohnbereiche und hochwertige Materialien sorgen für ein angenehmes Wohngefühl und einen einzigartigen Charme.
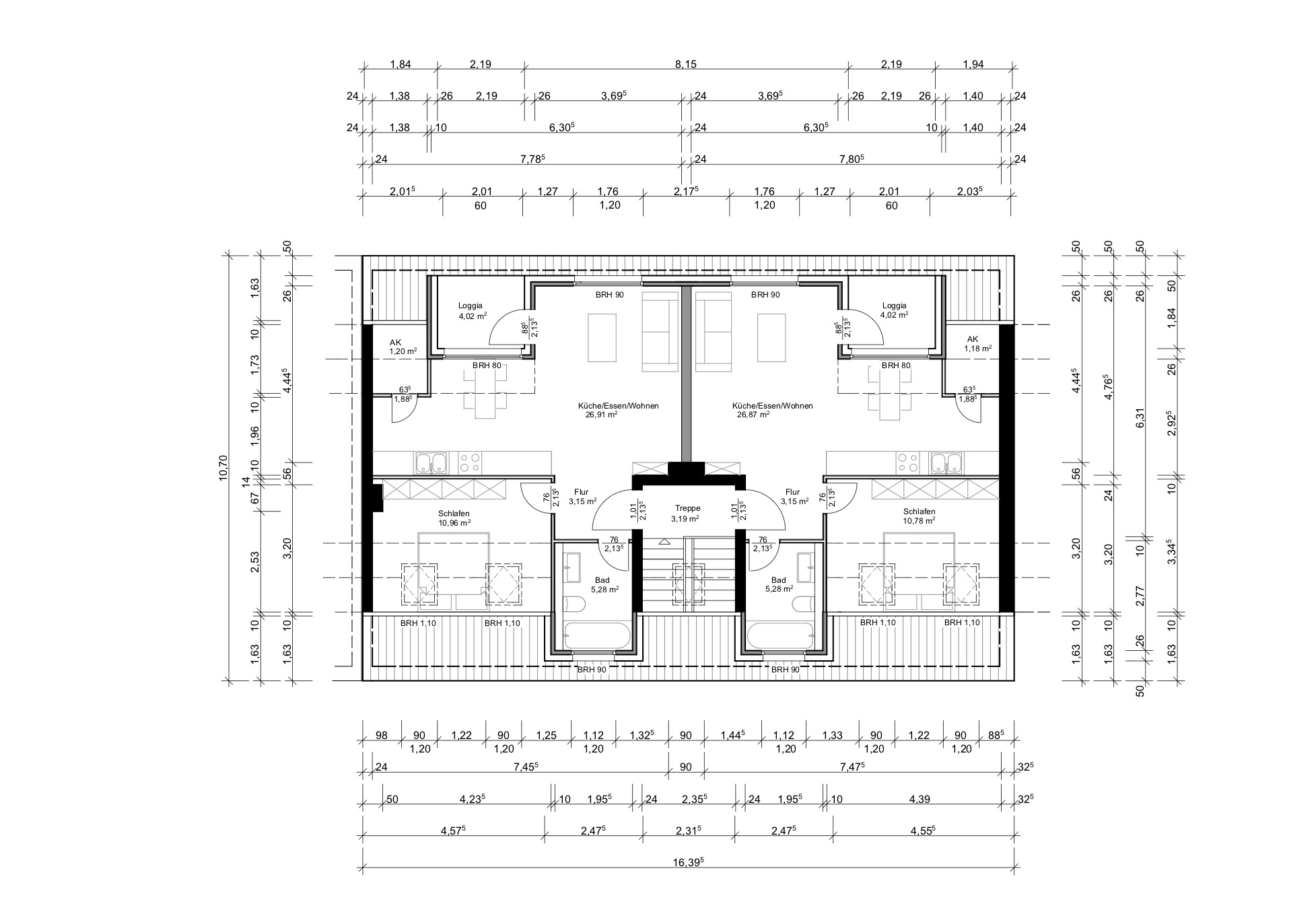
Besonders hervorzuheben sind die clever genutzten Grundrisse, die auch im Dachgeschoss viel Platz und Komfort bieten. Die neuen Wohnungen verfügen über moderne Bäder, stilvolle Bodenbeläge und energieeffiziente Ausstattung. Die zentrale Lage in Datteln bietet eine hervorragende Anbindung an Einkaufsmöglichkeiten, Schulen und Freizeitangebote. Mit diesen Dachgeschossausbauten setzt MS-Projektbau ein Zeichen für innovative Wohnraumschaffung und zeitgemäßen Lebensstil.
Die Bilder zeigen, wie aus alten Dachgeschossen moderne, helle Wohnungen entstanden sind. Neue Fenster, stilvolle Innenausstattung und clevere Raumlösungen machen die Ausbauten zu echten Highlights – ein Gewinn für das gesamte Gebäude und seine Bewohner.